İkiz Villa
Şile Yeşilvadi’de Doğayla Uyumlu Modern Villa Yaşamı Şile’nin Yeşilvadi Mahallesi’nde yer alan bu özel villa, modern mimari anlayışı doğal dokuyla buluşturarak üç katlı fonksiyonel bir yaşam alanı sunuyor.
Ahşap
ve taş cephe detaylarıyla doğayla bütünleşen yapı, geniş peyzaj alanı ve
kademeli bahçeleriyle bölgenin doğal coğrafyasına uyum sağlıyor.
Bahçe Katı
Bahçe katında, verandaya açılan ve özel yüzme havuzuna bakan şömineli geniş bir salon bulunuyor. Bu alan hem yaz hem kış kullanımı için ideal bir atmosfer sunuyor. Ayrıca bu katta bir banyo & WC ile oyun odası, yatak odası veya oturma alanı olarak değerlendirilebilecek çok amaçlı bir oda yer alıyor.
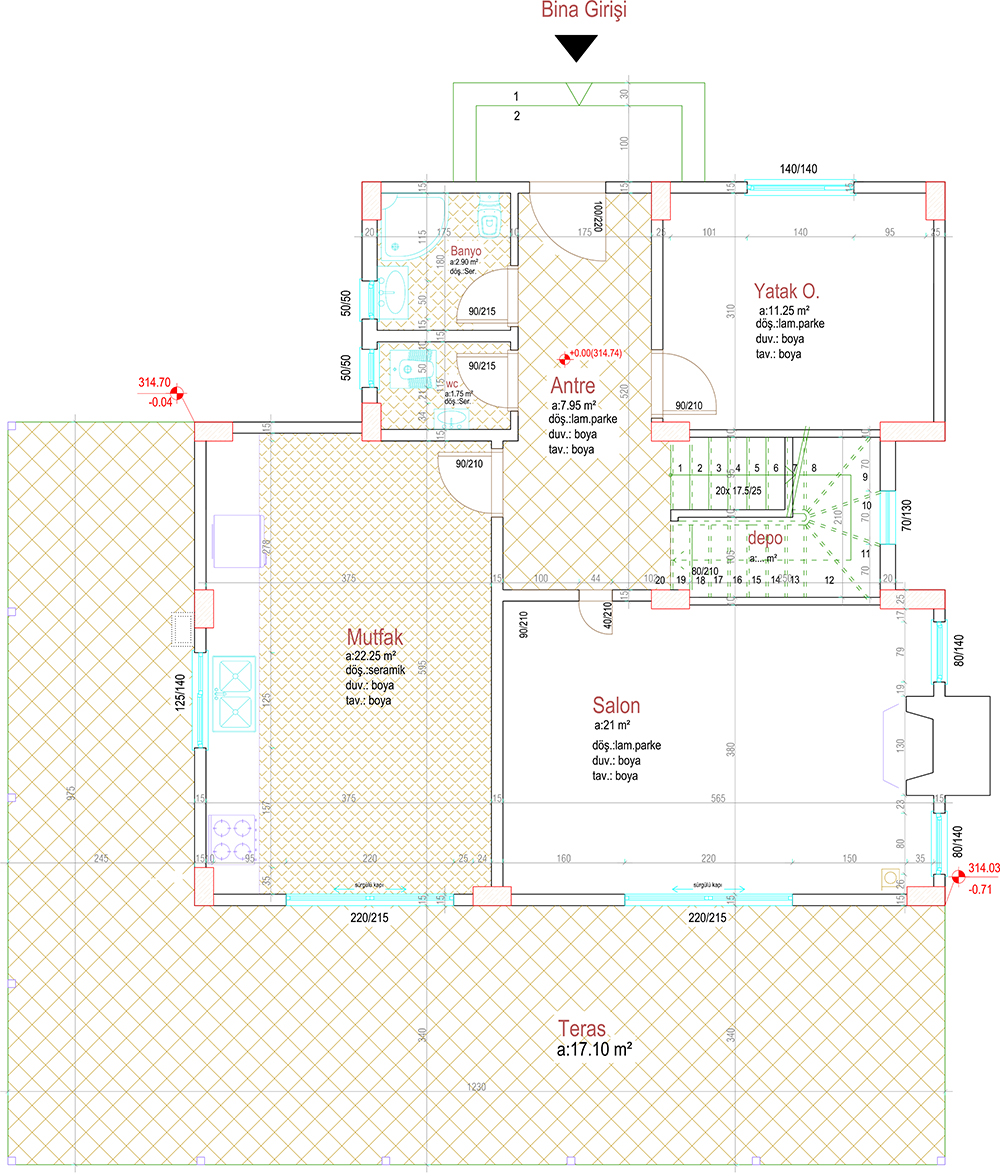
Giriş Katı
Ada tezgâhlı şık mutfağın yer aldığı giriş katı, arka bahçeye açılan çok amaçlı bir oda, genel kullanım için WC ve geniş bir salon ile modern ve işlevsel bir yaşam alanı sunuyor.
1. Kat – Yatak Odaları
Bu katta ebeveyn banyolu ve büyük balkonlu master yatak odası, iki adet genel yatak odası, ortak kullanım banyosu ve makine odası bulunuyor.
Çatı Katı
Çatı arasında geniş bir ardiye alanı yer almaktadır.
Dış Alanlar ve Teknik Birimler
Villada bir araçlık otopark, arka bölümde müştemilat, tesisat odası, kademeli iki bahçe ile zeytin ve meyve ağaçları ve limon servilerden oluşan doğal bir peyzaj bulunuyor.
Isıtma Sistemi
Villanın tüm odaları modern konfor standartlarına uygun şekilde yerden ısıtma sistemi ile ısıtılmaktadır.
Mimari Kimlik ve Malzeme Seçimi
Cephede kullanılan ahşap ve doğal taş dokular, yapının bulunduğu coğrafyayla tam bir uyum içinde olmasını sağlamaktadır. Çevre duvarlarının bölgeye özgü doğal taştan yapılması, projeye güçlü ve estetik bir karakter kazandırmaktadır.








































Sunulan kat planı, kullanıcı konforunu ve işlevselliği merkeze alan son derece akılcı bir mekânsal organizasyon sergilemektedir. Merkezi bir antre, tüm mekanlara net bir dağılım sağlarken; salon ve mutfaktan doğrudan geçiş imkanı sunan geniş teras, iç ve dış mekan algısını birleştirerek ferah bir sosyal yaşam alanı oluşturur.
Bu ortak yaşam alanlarından korunaklı bir şekilde ayrılan yatak odası gerekli mahremiyeti sağlarken, girişin hemen yanına konumlandırılan banyo/WC ve merkezi depo gibi destek birimleri ise planın pratik ve düşünülmüş yapısını tamamlayarak akıcı ve verimli bir kullanım sunar.