Konut
Karacaköy Mahallesi’nin kendine ait butik aile koyuna çıkan yol üzerinde inşa edilecek bu özel proje, beş adet müstakil bahçe kullanımlı ikiz villadan oluşmaktadır. Konumu itibarıyla doğayla iç içe, sakin ve tatil beldesi atmosferinde bir yaşam vadeden proje; fonksiyonelliği, mimari zarafeti ve samimi yerleşim düzeniyle öne çıkacaktır.
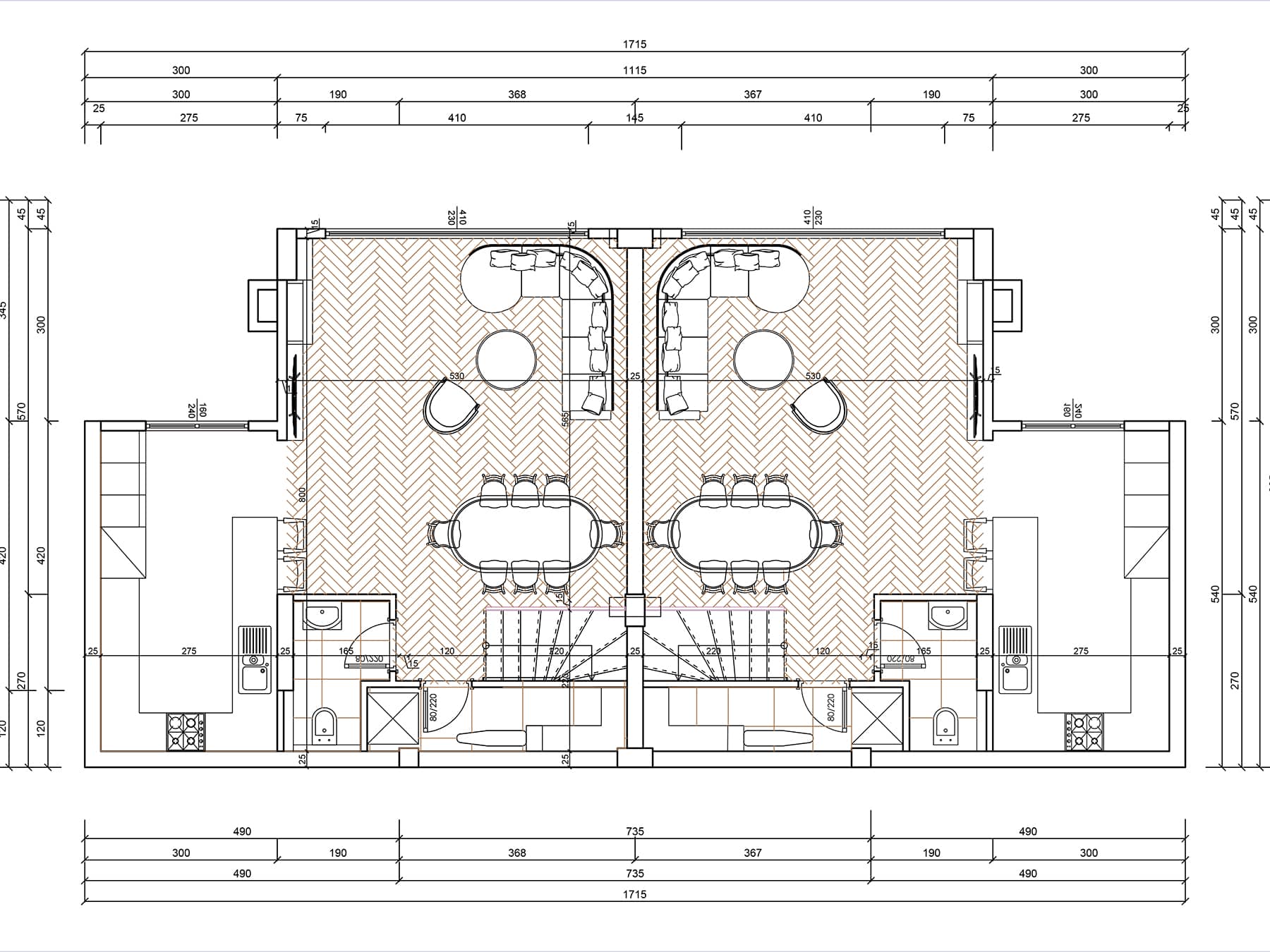
Villaların bahçe katı, sosyal yaşam alanı olarak tasarlanmış olup; şömineli geniş bir salon, mutfak ve banyo bölümlerinden oluşmaktadır. Bu katta yer alan verandalar, yaklaşık 50 metrekarelik özel bahçelere açılarak iç ve dış mekân arasında doğal bir bütünlük sağlamaktadır.
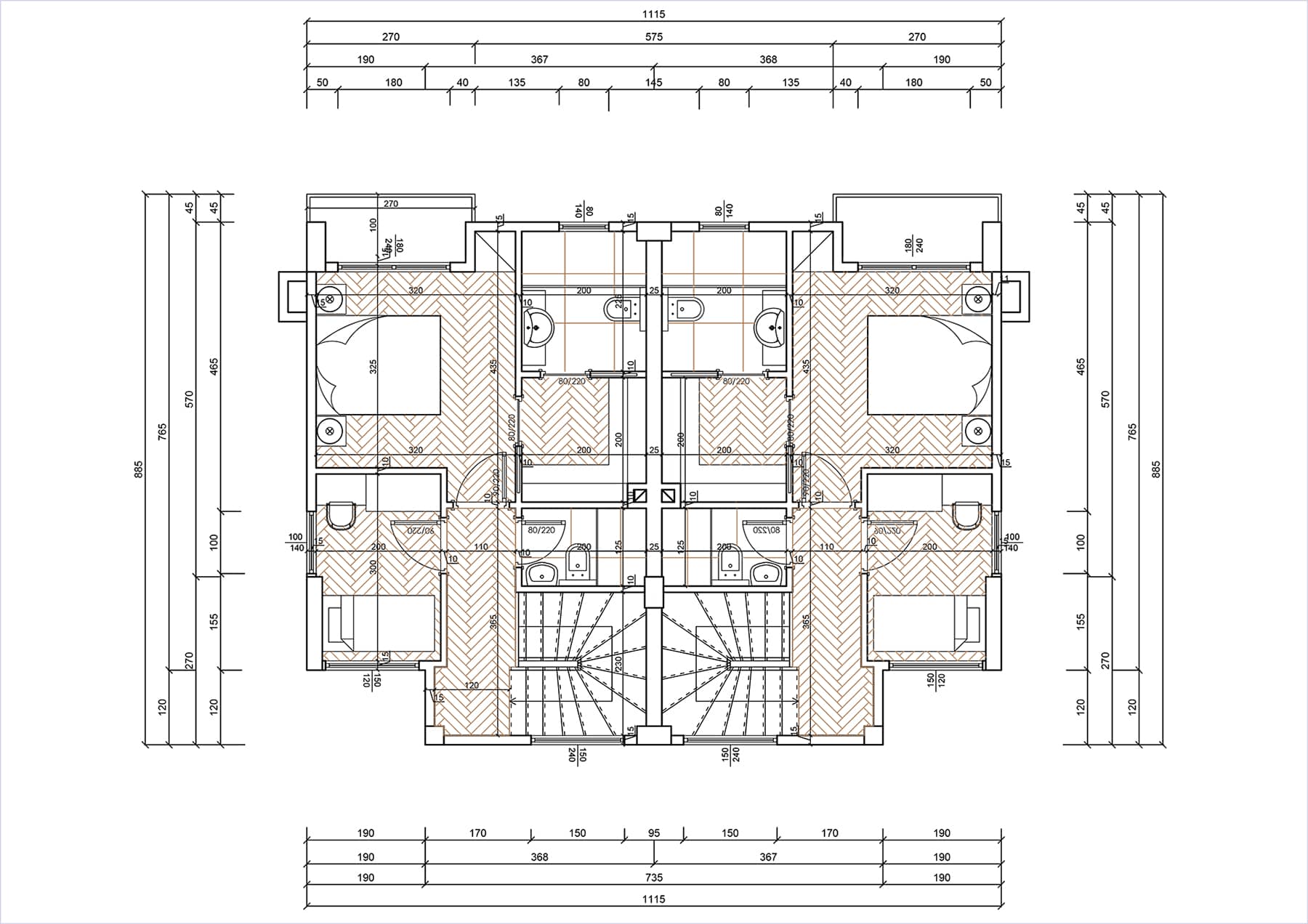
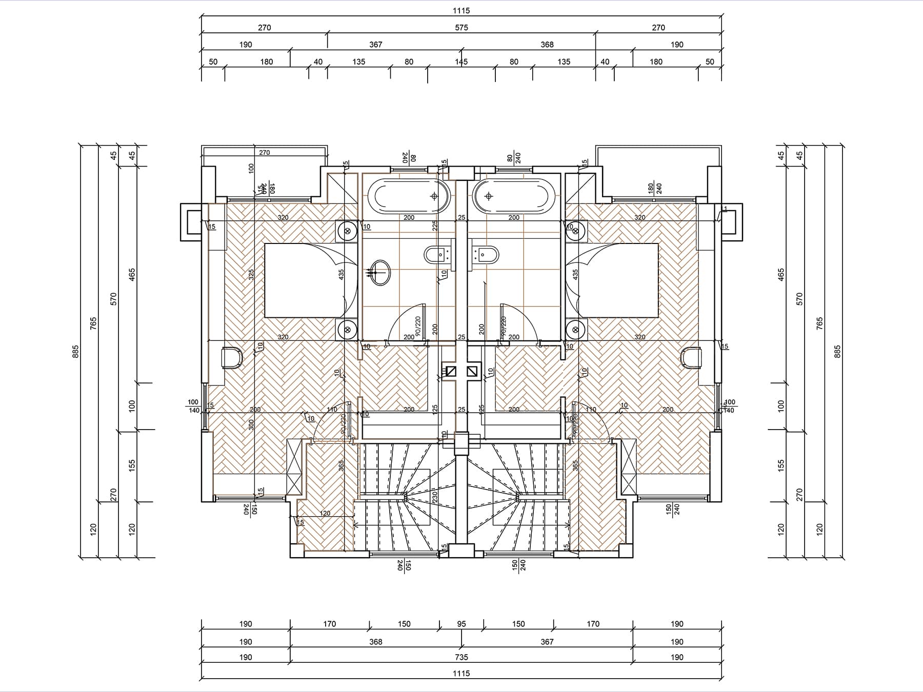
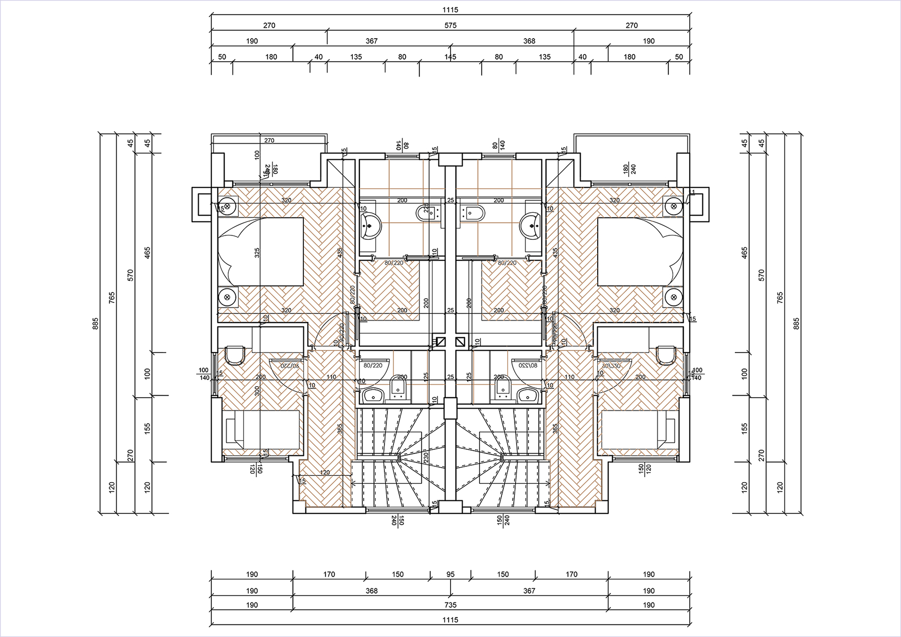
Zemin katta iki yatak odası ve ortak banyo, birinci katta ise bir çocuk odasıyla birlikte balkonlu, banyolu ve giyinme odalı geniş bir ebeveyn süiti planlanmıştır. Yapı, ilerleyen süreçte asansör kurulumu için uygun altyapıya sahip olacak şekilde projelendirilmiştir.
Site genelinde açık yüzme havuzu, kafeterya, çocuk oyun alanı, kamelyalar ve müştemilat birimleri yer alacaktır. Giriş bölümünde her villa için bir araçlık açık otopark alanı planlanmıştır.
Karacaköy Villa Sitesi, İstasyon Mimarlık’ın özgün tasarım anlayışıyla; doğal yaşamın huzurunu, modern mimarinin zarafetiyle bir araya getiren, butik ölçekte fakat büyük bir yaşam kalitesi sunan özel bir proje olarak hayata geçirilecektir.





















Plan kurgusu, fonksiyonları katlara göre dikey olarak ayıran akılcı bir yapıya sahiptir. En alt katta bahçeyle direkt bağlantılı bir hobi ve dinlenme alanı bulunurken, evin sosyal merkezi olan orta katta salon, mutfak ve geniş ana balkon yer alır. Tamamen mahremiyete ayrılmış en üst kat ise, her birinin kendine özel balkonu olan yatak odalarını barındırır.
Bu dikey ayrım, sosyal ve özel alanları birbirinden net bir şekilde izole ederek konforlu bir kullanım sunar.